JPDA is now known as Circular logo and our new web domain is Circular.nyc

Oscar Bond Salon

New York, NY, USA • 1999

Print
Uncheck 'Print headers and footers' for best results.

Oscar Bond Salon

New York, NY, USA • 1999

Entry stair

A new concept hair salon with connectivity and social networking at its core.

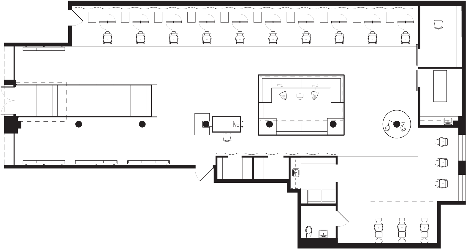
The design for the Oscar Bond Salon presents a new concept for the salon. An extended aluminum runway brings visitors down into the space, arriving at a centralized waiting area. This lounge is the nexus of the space, a raised platform with broadband net connections and video monitors. Taking the broad sense of the term "salon," the project proposes a space for complex interaction among patrons, stylists, and via the Internet, anybody who wants to participate. The salon is completely networked for Internet and closed circuit video signals.

An associated web site was designed to interlock with the salon's physical space. Through web cams and custom server software, the site enables communication between the salon and the rest of the web.

The cutting station mirrors and the video circuiting allow for the transmission and reflection of images throughout the salon space, and out to the internet at large. The mirrors and reception desk are suspended from the salon ceiling.

The lighting for the salon is site-specific, and was custom made by Jordan Parnass Digital Architecture and Mesh, based on a system developed by Eric Liftin. The interior envelope is defined by walls of two-tone rip-stop parachute nylon, backlit at regular intervals by circular fixtures.

Oscar Bond Salon won the Best Retail Project for the Interior Design Interiors Award in 2000.

Related News Articles Oscar Bond Salon featured in Mega Elecciones "Design: Tips and Tricks"

The design for the Oscar Bond Salon presents a new concept for the salon. An extended aluminum runway brings visitors down into the space, arriving at a centralized waiting area. This lounge is the nexus of the space, a raised platform with broadband net connections and video monitors. Taking the broad sense of the term "salon," the project proposes a space for complex interaction among patrons, stylists, and via the Internet, anybody who wants to participate. The salon is completely networked for Internet and closed circuit video signals.

An associated web site was designed to interlock with the salon's physical space. Through web cams and custom server software, the site enables communication between the salon and the rest of the web.

The cutting station mirrors and the video circuiting allow for the transmission and reflection of images throughout the salon space, and out to the internet at large. The mirrors and reception desk are suspended from the salon ceiling.

The lighting for the salon is site-specific, and was custom made by Jordan Parnass Digital Architecture and Mesh, based on a system developed by Eric Liftin. The interior envelope is defined by walls of two-tone rip-stop parachute nylon, backlit at regular intervals by circular fixtures.

Oscar Bond Salon won the Best Retail Project for the Interior Design Interiors Award in 2000.

Related News Articles Oscar Bond Salon featured in Mega Elecciones "Design: Tips and Tricks"

DESIGN TEAM

Jordan Parnass

CONTRACTORS

Abra Construction.

CONSULTANTS

Collaboration with Mesh Architectures/Eric Liftin.

PHOTOGRAPHER

Michael Moran


The design for the Oscar Bond Salon presents a new concept for the salon. An extended aluminum runway brings visitors down into the space, arriving at a centralized waiting area. This lounge is the nexus of the space, a raised platform with broadband net connections and video monitors. Taking the broad sense of the term "salon," the project proposes a space for complex interaction among patrons, stylists, and via the Internet, anybody who wants to participate. The salon is completely networked for Internet and closed circuit video signals.

An associated web site was designed to interlock with the salon's physical space. Through web cams and custom server software, the site enables communication between the salon and the rest of the web.

The cutting station mirrors and the video circuiting allow for the transmission and reflection of images throughout the salon space, and out to the internet at large. The mirrors and reception desk are suspended from the salon ceiling.

The lighting for the salon is site-specific, and was custom made by Jordan Parnass Digital Architecture and Mesh, based on a system developed by Eric Liftin. The interior envelope is defined by walls of two-tone rip-stop parachute nylon, backlit at regular intervals by circular fixtures.

Oscar Bond Salon won the Best Retail Project for the Interior Design Interiors Award in 2000.

Related News Articles Oscar Bond Salon featured in Mega Elecciones "Design: Tips and Tricks"

A new concept hair salon with connectivity and social networking at its core.

The design for the Oscar Bond Salon presents a new concept for the salon. An extended aluminum runway brings visitors down into the space, arriving at a centralized waiting area. This lounge is the nexus of the space, a raised platform with broadband net connections and video monitors. Taking the broad sense of the term "salon," the project proposes a space for complex interaction among patrons, stylists, and via the Internet, anybody who wants to participate. The salon is completely networked for Internet and closed circuit video signals.

An associated web site was designed to interlock with the salon's physical space. Through web cams and custom server software, the site enables communication between the salon and the rest of the web.

The cutting station mirrors and the video circuiting allow for the transmission and reflection of images throughout the salon space, and out to the internet at large. The mirrors and reception desk are suspended from the salon ceiling.

The lighting for the salon is site-specific, and was custom made by Jordan Parnass Digital Architecture and Mesh, based on a system developed by Eric Liftin. The interior envelope is defined by walls of two-tone rip-stop parachute nylon, backlit at regular intervals by circular fixtures.

Oscar Bond Salon won the Best Retail Project for the Interior Design Interiors Award in 2000.

Related News Articles Oscar Bond Salon featured in Mega Elecciones "Design: Tips and Tricks"

DESIGN TEAM

Jordan Parnass

CONTRACTORS

Abra Construction.

CONSULTANTS

Collaboration with Mesh Architectures/Eric Liftin.

PHOTOGRAPHER

Michael Moran

Breakpoint: small Breakpoint: medium Breakpoint: large
Container Padding:
Column width:
Gutter:
1
2
3
4
5
6
7
8
9
10
11
12