JPDA is now known as Circular logo and our new web domain is Circular.nyc

Fusebox

New York, NY, USA • 2001

Print
Uncheck 'Print headers and footers' for best results.

Fusebox

New York, NY, USA • 2001

Reception desk and waiting area

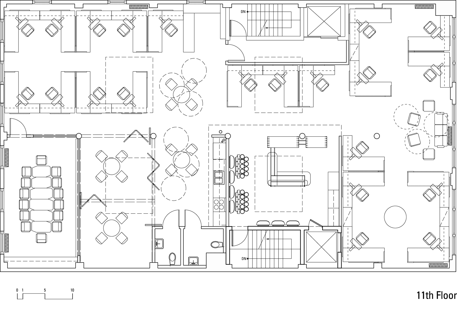
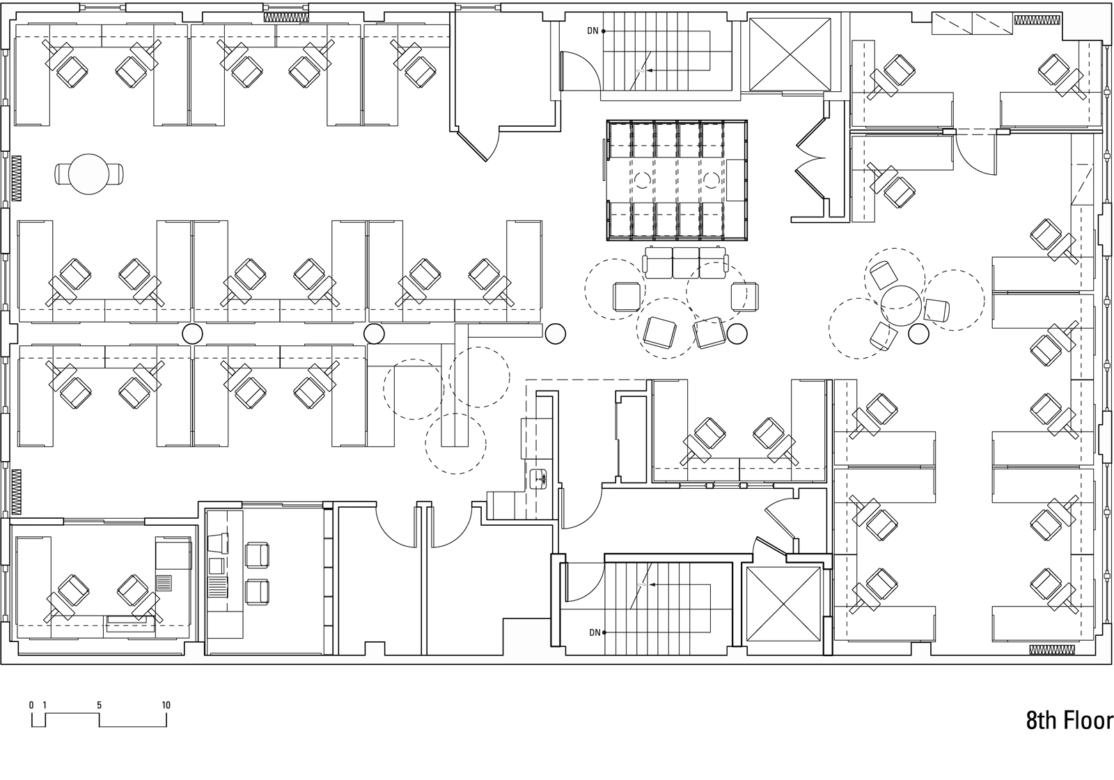
A total design branded environment is developed for the offices of a growing new media company.

A new media company with explosive growth, Fusebox required a comprehensive design solution for its offices in New York's Flatiron District. Adopting a "total design" approach, a strategic masterplan was developed: incorporating custom portable workstations; mobile spatial elements; and prototypical layouts and configurations.

By focusing on flexibilty, portability, and re-useability, the client was given a blueprint for future growth and expansion – assuring the long-term viability of their investment. Most of the elements can be reconfigured for multiple uses, and can be packed up and shipped to new sites as the company expands.

A new media company with explosive growth, Fusebox required a comprehensive design solution for its offices in New York's Flatiron District. Adopting a "total design" approach, a strategic masterplan was developed: incorporating custom portable workstations; mobile spatial elements; and prototypical layouts and configurations.

By focusing on flexibilty, portability, and re-useability, the client was given a blueprint for future growth and expansion – assuring the long-term viability of their investment. Most of the elements can be reconfigured for multiple uses, and can be packed up and shipped to new sites as the company expands.

DESIGN TEAM

Jordan Parnass


A new media company with explosive growth, Fusebox required a comprehensive design solution for its offices in New York's Flatiron District. Adopting a "total design" approach, a strategic masterplan was developed: incorporating custom portable workstations; mobile spatial elements; and prototypical layouts and configurations.

By focusing on flexibilty, portability, and re-useability, the client was given a blueprint for future growth and expansion – assuring the long-term viability of their investment. Most of the elements can be reconfigured for multiple uses, and can be packed up and shipped to new sites as the company expands.

A total design branded environment is developed for the offices of a growing new media company.

A new media company with explosive growth, Fusebox required a comprehensive design solution for its offices in New York's Flatiron District. Adopting a "total design" approach, a strategic masterplan was developed: incorporating custom portable workstations; mobile spatial elements; and prototypical layouts and configurations.

By focusing on flexibilty, portability, and re-useability, the client was given a blueprint for future growth and expansion – assuring the long-term viability of their investment. Most of the elements can be reconfigured for multiple uses, and can be packed up and shipped to new sites as the company expands.

DESIGN TEAM

Jordan Parnass

Breakpoint: small Breakpoint: medium Breakpoint: large
Container Padding:
Column width:
Gutter:
1
2
3
4
5
6
7
8
9
10
11
12